Skip to content

L.D. Fargo Public Library

120 E. Madison Street, Lake Mills, WI, 53551

Search the Catalog

Hours of Operation:
Monday-Thursday: 9am-8pm
Friday: 9am-5pm
Saturday: 9am-1pm
Sunday: Closed

  • Home
  • Room Reservation
  • About
    • Contact
    • Resources >
      • In-Library Services >
        • 3D Printer
        • Book Club Request
        • Inter-Library Loan Request
        • Meeting Room Availability >
          • Meeting Room Request
          • After Hours Meeting Room Request
        • Movie and Music List
      • Digital Library >
        • Digital Magazines
        • Hoopla Digital: eBooks, eAudiobooks, Music, Movies, Television, eComics
        • Wisconsin’s Digital Library – eBooks
      • Local Links
      • Research Databases
      • Search Bridges Catalog
    • Library Strategic Plan
    • Building Needs and Expansion
    • The Library >
      • Library Services and Policy
      • Mission Statement and Location
      • Library Staff
      • Library Board >
        • Library Board Minutes
      • Library History
    • Newsletter
    • Director’s Page
  • Events
    • Event Calendar
    • StoryWalk®
    • Library Geocaches
  • Adult
  • Teen
  • Children
    • Children
    • Baby and Me Story Time
    • Story Time
  • Reading Challenges
  • Friends of the Library
    • FOL Events
    • FOL Photos
    • FOL Board of Directors
    • FOL Corporate Sponsorships
    • FOL Membership Information
    • FOL Scholarships
  • Menu

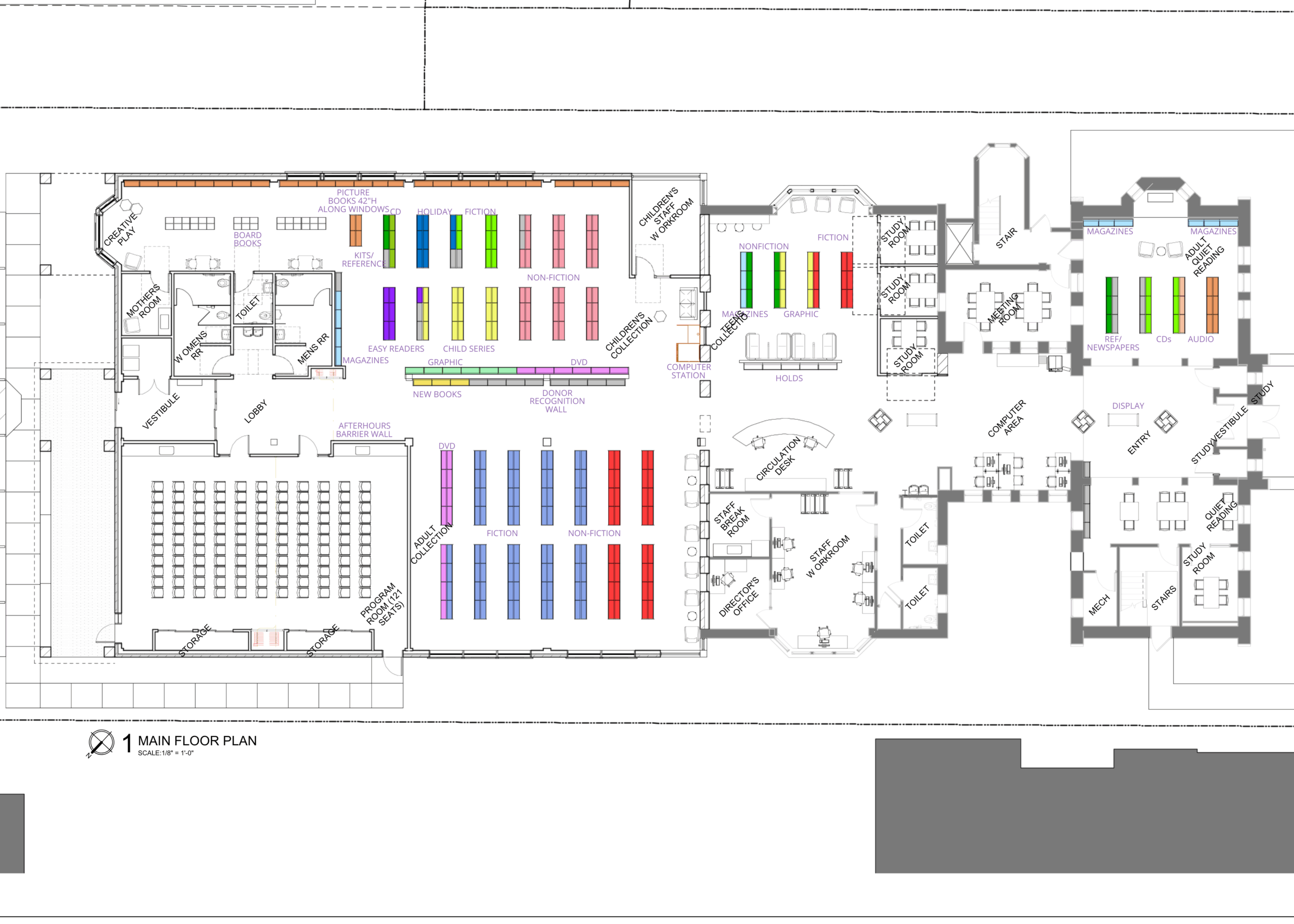
Zoomed in floor plan 2019409.01 – L.D – A1-1 – FLOOR PLAN 9-3-25.pdf(1)

Posted on September 16, 2025September 16, 2025 by Autumn Scoville
← Previous Next →
  • Home

Contact

120 E. Madison St.
Lake Mills, WI 53551
920-648-2166
Hours:
Monday-Thursday: 9am-8pm
Friday: 9am-5pm
Saturday: 9am-1pm
Sunday: Closed

  • Facebook
  • Instagram
  • Twitter
  • YouTube

Copyright © 2021 L.D. Fargo Public Library Theme by SiteOrigin